Acciona Offices – A Contemporary Workplace in Barcelona
Project Specifications:
Service
Architecture
Sector
Interior Design
Location
Barcelona, Spain
Area
Area: 1,435 m2
Client
Confidential
Team
Collaborators
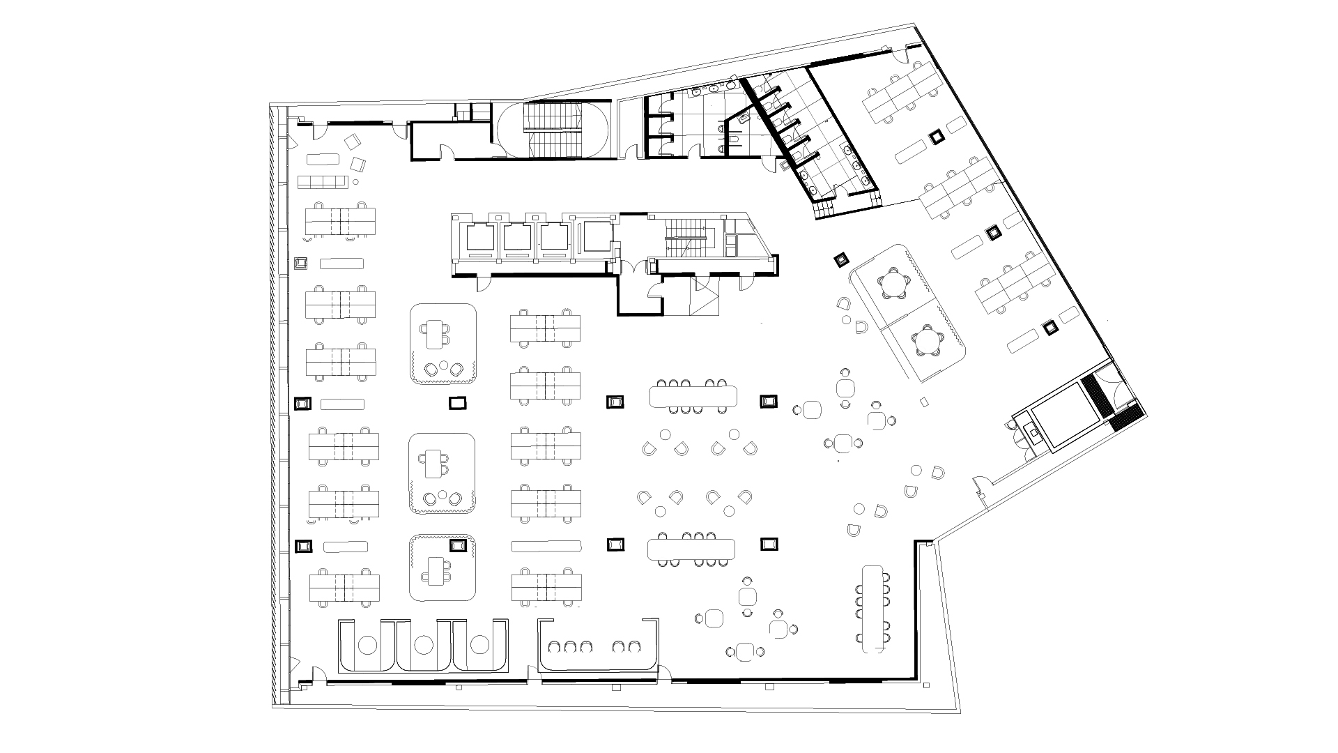
The Acciona offices in Barcelona were designed as a contemporary workspace that responds to evolving ways of working. The project transforms underused areas into open, connected environments, creating a more dynamic and comfortable workplace.
Rather than organising the office as a series of isolated rooms, the design brings different work areas together within a more open and connected environment.
By improving internal connections and activating unused spaces, the project creates a flexible workplace that supports collaboration, creativity and everyday well-being.

Flexible Spaces for Everyday Work
The layout is organised around open and adaptable work areas that allow teams to move easily between focused work, informal meetings and collaborative moments. Workstations, meeting rooms, and lounge areas are integrated into a single spatial system, encouraging interaction while still providing spaces for concentration when needed.
This flexible approach allows the office to evolve over time and adapt to new working patterns.

Light, Comfort and Well-Being
Natural light is one of the space’s main qualities. Large openings bring daylight deep into the interior, creating bright and comfortable work areas throughout the office.
The design prioritises clarity and openness, with simple circulation, generous spaces, and a calm material palette that creates a balanced, welcoming environment for everyday work.
A Cohesive Workplace Identity
The interior design aims to give the workplace a clear and unified identity. Furniture, materials, and spatial elements are carefully coordinated to create a coherent atmosphere across the office’s different areas.
Informal meeting points, shared tables, and relaxed seating areas foster social interaction in the workspace, reinforcing a sense of community in the office.













